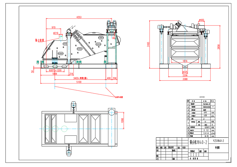
布料器好色视频网站从外型上看和重型好色视频网站比较相像,但其技术细节还是有很大的不同的。同矿用好色视频网站技术相似,但没有常用的矿用筛大,所以称它为轻型矿用筛,也叫小型矿用筛。解决了使用普通的轻型直线好色视频网站存在效果不十分理想,但用重型的矿用好色视频网站却又大材小用,反而会造成成本加大、资源浪费的问题。
布料器好色视频网站优势:
1、性价比高,衔接轻型筛机与重矿筛间的空白,减少投资成本。
2、筛分效率高,处理量适中。
3、筛网采用锰钢编织网,经久耐用。
4、筛机操作简单,且拥有较好的密封性,有利于工作环境。
5、占地面积小,比轻型好色先生官网下载处理量大。
6、耗能小,使用寿命长。
该筛分机在传统设备上做了大幅度调整,使设备比传统设备更耐用,更方便,更稳定。该系列筛机成本低,品质高。为客户创造价值提供了更加有效的基础保证。
布料器好色视频网站结构特点:
1.进料口设置导流式分料装置,便于物料均匀分布,提高透筛概率。
2.箱体大幅减少焊接数量。受力均匀,残余应力极低,抗疲劳效果大幅提高。寿命长。
3.压框结构更合理,更能有效防止串层,拆装方便快捷。紧固牢靠。
4.出料口采用进口设备的快装结构。使检修工作更加简便。
5.筛框采用定位自清式清网结构。使堵孔几率比传统更低,更有效。
6.密封盖设置手孔式观察窗。使维护检修更人性化。
布料器好色视频网站利用振动电机激振作为振动源,使物料在筛网上被抛起,同时向前作直线运动,物料从给料机均匀地进入筛分机的进料口,通过多层筛网产生数种规格的筛上物、筛下物、分别从各自的出口排出。具有耗能低、产量高、结构简单、易维修、全封闭结构,无粉尘溢散,自动排料,更适合于流水线作业。

新乡市好色先生91导航机械设备有限公司
联系人:尚经理
手机:15736969926
邮箱:3043144287@qq.com
地址:河南省新乡西环工业园区